在米兰app正版直播下载安卓施工过程中,由于各种原因需要现场切割开孔。
比如电厂锅炉米兰app正版直播下载安卓施工管道开孔,一般情况下,平台上大于200mm的开孔在生产厂加工制造。小于200mm的开孔在现场安装时根据具体情况切割。为保证米兰app正版直播下载安卓在现场切割开孔后不降低承载和抗腐蚀能力,米兰app正版直播下载安卓安装完毕后美观整齐,对米兰app正版直播下载安卓管道开孔的技术质量要求详细的说一下。
主要施工工艺质量要求
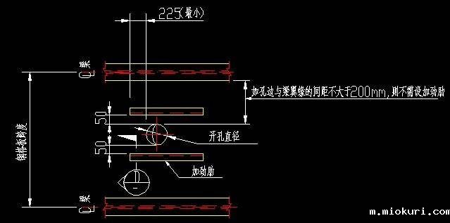
1. 开孔形式,米兰app正版直播下载安卓上开孔形式分两种:圆形开孔和方形(椭圆)开孔。对于排管原则上采用方形(椭圆)开孔。对于单管可统一为圆形或方形开孔。
2 .参考测量, 在施工中,实际参考测量图纸数据直接影响到米兰app正版直播下载安卓的安装尺寸是否准确。要求米兰app正版直播下载安卓开孔的基准点和管道安装的基准点一致,测量管道的实际外径偏差为正负10毫米。
3.画线,根据基准点、图纸尺寸画出开孔的具体位置,在画过程中要考虑到管子的热膨胀、保温余量。
4.开孔,米兰app正版直播下载安卓一般为热镀锌,根据画线位置用切割机切割格栅板,不可用火焊切割,而且尽量使施工面平整光洁,易于下一步施工。
5.开孔后处理,切割后的米兰app正版直播下载安卓内环焊扁钢,加固格栅板,保证其强度,保持整体工艺美观。米兰app正版直播下载安卓的开孔边缘的扁钢高度应统一一致,且下部与格栅下部平齐。米兰app正版直播下载安卓开孔的边缘扁钢接头处的焊接应圆滑美观,扁钢高度应一致,和米兰app正版直播下载安卓应垂直。在安装完工后,对铁锈、残留焊接飞溅物和影响油漆质量的杂物应予清除。
6.打磨油漆,对安装好的扁钢进行打磨除锈,除锈一般采用电动除锈,除锈结束后,刷一道底漆、一道面漆、油漆颜色要和格栅板颜色基本一致。
